-

事業領域が広い建築開発設計事務所です
-

建物に関わった全ての人を笑顔に
-

誠実・堅実・信頼
-

分かりやすい建設プロセス
建築開発設計・監理の株式会社K.設計
私たち株式会社K.設計は昭和44年7月22日創業以来、一級建築士事務所として「誠実」「堅実」をモットーに、真心を込めて建築開発設計・監理を行ってきました。これからも慢心せず全社員一丸となり、皆様に愛されるケイ設計として社会に貢献し、お客様に満足していただけるよう邁進してまいります。
官公庁施設、社会福祉法人施設、医療法人施設、事務所、商業複合施設、工場、マンション、住宅、ホテルなどの設計・監理、構造計算、耐震診断、また、土地活用、資産運用、区画整理などのコンサルティングは株式会社K.設計にお任せください。
ケイ設計は信頼していただけるコンストラクション・マネージメント事業者として、ステークホルダーへの説明責任を果たし、熟練技術集団として発注者の立場で透明性のある適正な監修を代行いたします。
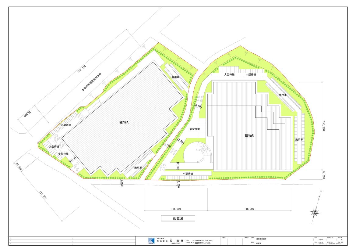
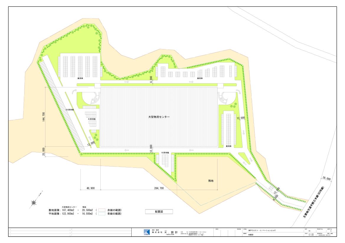
実績紹介








